After work on Wednesday, March 2, 2022, Colleen and I drove up to a hotel close to O'Hare Airport in Chicago to stay overnight for our early Tuesday morning flight to Florida for some much needed sun and relaxation for a few days. We met Rick and Christina Crew at the airport, went to an Irish Pub for dinner then went back to the hotel to have some drinks in their lounge.
Allen sent us the 2nd Draft with the roof plan, basement plan, first floor plan, ceiling heights, site plan and our first look at the front & rear renderings. Since we were sitting at a table in the lounge, Colleen opened it up with her Samsung Tablet so we could see it easier than on our phone.
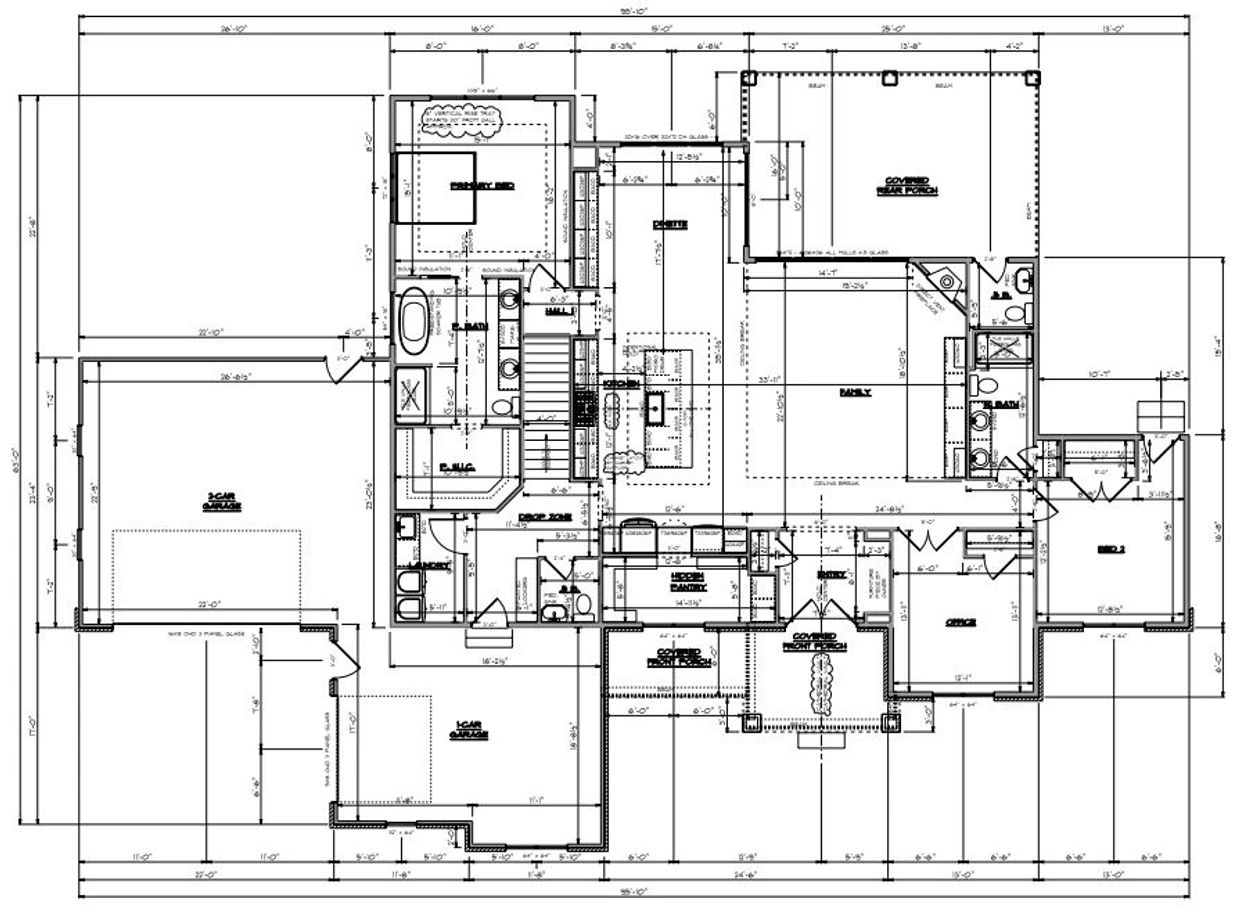
Looking at the floor plan, the only item that stuck out at us that we did not like was the cathedral ceiling on the front porch. We also did not like the faux beams in the living room and above the kitchen island. That would be an easy fit of just removing the beams and go with a flat ceiling. Looking more closely at it and overall we were very pleased with the floor plan. We did not like the outside front rendering at all. We both had our set idea of what we wanted the front to look like and we would have to have Allen change the front rendering and the roof line.
The Site Plan showed us where the home will sit on our lot and it was breathtaking. Having a corner of the cul-de-sac, I was nervous on how the home could be placed that would utilize our 2+ acres to the fullest. Well, this site plan put me at ease and filled me with even more excitement because of how it will be laid out on our lot.
The front rendering that we did not like was the front dormer/skylight combo and wanted that gone. The second part was our 1 car garage facing South - we wanted the "bump out" centered with small windows on both sides of it. We also wanted a "bump out" in the guest bedroom. Lastly, we wanted the front porch to have a flat ceiling and change the roof line to remove and change the gables. Colleen wanted most of the vertical siding removed and replaced with the light brick. She wanted the vertical siding on the 2 gables and the top portion of the porch.
The rear rendering was beautiful and we did not want any changes to it. The rear rendering also gave us a small glimpse of what the kitchen will look like. Colleen was set in her ideas for this kitchen and she was excited to see the refrigerator and double ovens on the South wall and in between them would be the cabinet that would give access to her hidden pantry. It also shows how the buffet and cabinets in the dining room will look.
I texted Allen and told him we received the plans and would look at them the following week when we got back from Florida.

Draft 2 gave us the 1st rendering of the front of the home. We did not like the dormer/skylight combo in the front and did not like the beams in the front porch. We were not excited about the roof-line.

LOVE IT!!! The door on the covered porch is the 1/2 bath and offset enough to allow us to have room to add the outdoor kitchen once the home is built. Having it off to the side will not hinder the view of the backyard through the living room windows.

Draft 2 showed us the location of our home on our lot. The Estates has a 40' right-away in the front of the lots because of the underground electrical, natural gas, water & sewers. Our home will sit with our closest part of the garage at the 40' line and our front porch will be about 55' from the cul-de-sac. The angle of the home will utilize the backyard to its full potential.
We use cookies to analyze website traffic and optimize your website experience. By accepting our use of cookies, your data will be aggregated with all other user data.